设计灵感尽显个性与风采 (设计新元素)

他们是中国室内设计界的新贵!

他们,青春洋溢、热血澎湃!

他们,思维活跃、坚持不懈!

他们,在设计的国度里忘我地打造生活的缤纷!

他们,在设计的土壤上尽情地耕耘自由的斑斓!

他们,让设计有色!

他们,让设计有光!

他们在追寻设计之光的同时,

设计也令他们光彩夺目!

第二届红鼎奖启动以来,凝聚了一批才华横溢、富有社会责任感的设计界名睿之士,他们与红鼎奖一起深度挖掘设计背后的文化价值和创新驱动力,为激发原生态的“中国设计”创造力添砖加瓦。他们就是第二届红鼎奖的城市评审及媒体评审,代表当地的新锐设计力量,让富有创造活力的设计作品公诸于众、熠熠生辉。今天,让我们一览城市/媒体评审中五位卓越斐然的设计界新贵对于设计的态度和无限风采!

1

城市评审——为浙江设计发声的池陈平

池陈平 著名设计师

池陈平空间设计事务所 创始人/设计总监

杭州青年设计师联合会(青设会)创始人

尚层装饰(北京)杭州分公司 设计总监

【所获殊荣】

中国建筑装饰协会高级室内建筑师

中国装饰协会会员

杭州青年设计师联合会《青设会》创始人

浙江最具影响力十大别墅室内建筑师

中国设计杰出青年

2017光华龙腾奖中国装饰设计业百人榜

2016年中国建筑装饰协会中国设计年度人物

2016年“红玺杯”尚层装饰集团第二届全国设计大赛金奖

2016年亚洲室内设计大赛住宅类银奖

2016年总评榜全国十佳住宅设计奖

2013--2017连续四年入围金堂奖年度优秀作品

2014--2016年室内设计总评榜年度十佳住宅空间作品奖

2015年室内设计总评榜,最佳人气设计师

2015年搜狐·特地陶瓷杯华东赛区银奖

2015年D-STAR设计星计划成员

2014年“中国住宅设计风尚人物奖”全国20强荣誉称号

2014年大师工作营优秀学员

池陈平先生,毕业于中国美术学院环艺系。2012年创立了池陈平空间设计事务所,带领一支20余人的设计团队,以严苛的选择标准,不拘一格的跨界精神,年轻富有创造力的精神以及完善的设计管理制度,将不同文化的设计与生活的理念融为一体,在满足设计功能与审美价值的同时,力求通过专业的设计与服务提升项目以外更多的附加值。

设计团队致力于为中国精英阶层定制独有的高端住宅空间,主张设计的多变性及创新性,在杭州、上海、北京、深圳、成都、云南及江浙多地完成了众多私人别墅府邸及样板间设计项目,代表作品有:《塑》、《融》、《理性的张扬》、《杭州最平静私宅》等。多年的设计经历已然让池先生和设计难以割舍,他聚力要为浙江设计发声,推动浙江设计登顶设计高峰!

【池陈平设计案例赏析-九溪*瑰园玫**

2

城市评审——为江苏设计发声的由伟壮

由伟壮

大墅尚品装饰连锁机构创始人

大墅尚品--由伟壮设计团队总设计师

翁布里亚软装陈设创始人、软装总监

80后中国室内设计代表人物

IFDA国际室内协会注册高级设计师

中国室内装饰协会会员

中国室内装饰注册室内设计师

苏州装饰设计行业协会副会长

常熟装饰设计行业协会会长

常熟市青年创业者协会理事长

苏州市青年创业者协会副会长

由伟壮先生,80后中国室内设计师中的佼佼者,常熟首位室内设计师作品登陆央视《交换空间》及《交换空间—家装气象站》,2009—2017年作品连续五次入选《交换空间—家装气象站》栏目;多次在著名家装杂志上发表和获得全国性的大奖,作品连续5年获金堂奖十佳空间设计、连续2年获“亨特窗饰杯”全国软装TOP设计奖、连续2年荣获芒果奖、连续4年获大金内装设计赛大奖、连续3年获搜狐威能杯全国设计大赛金、银奖等。他把设计看成是生命的一部分,他要为江苏设计发声,让江苏不同凡响的设计在中国乃至国际设计舞台上闪闪发光!

红鼎奖以“应用实现价值”为主题,您个人是如何解读这个主题的?

由伟壮:任何设计一定是必须以它的实用价值为主来体现它的设计价值,那作为我们室内设计师,同时是家居空间设计师来说,那它的实用性、应用性是排在第一位的,因为我们的设计一定是围着人、空间、环境的关系走的,人排第一,它的应用性也是非常重要的,所以它的设计里边一直是以这个为核心主题。

您认为红鼎奖对于参赛设计师而言有哪些意义和帮助?

由伟壮:那红鼎奖呢,其实对参赛设计师来说,他是一个更加包容和综合的交流平台,有助于各个城市的设计师相互的交流、理解、包容,大家可以一起相聚、分享,成长,对于我们这些设计师的成长来说,那是一个非常不错的平台。

您觉得红鼎奖对于设计行业的发展有哪些推动作用?

由伟壮:任何的奖项,包括红鼎奖在内,他实际上是促进和带动了一批设计师,然后呢,有一种积极进取的状态,同时,在评比过程中,我们会通过同行的一些作品,找到自己的差距和不足,不断的推动我们个人设计能力和行业能力的提高。

由伟壮先生红鼎奖 寄语

希望红鼎奖真正成为设计师自我释放的设计平台,期望全国更多的设计师相聚在红鼎奖,让我们相聚、分享、成长。

【由伟壮先生设计案例赏析】

项目名称】『巴黎密语』

项目地址】江苏省常熟市

项目面积】400㎡

空间格局】四层

户型结构】别墅

项目风格】法式奢华

主要材料】地砖、地板、墙纸、乳胶漆、白亚光油漆、护墙板、大理石等

合作模式】全包模式

设计单位】大墅尚品—由伟壮设计

施工单位】大墅施工

软装设计】翁布里亚软装机构

设计理念】法国的香水、时装与美食举世闻名,这样的一个国家给我们的感觉充满了浪漫与精致、感性与华丽,这是一个时尚与传统并存,奢华与低调相融合的奇妙国度。

本案业主追求生活的精雕细琢,富贵华丽的生活细节。按照业主的要求,为业主营造一种独特的法式奢华的室内风格,空间布局上突出流畅的线条,恢宏的气势,豪华舒适的居住空间,强调效果贵族风格,高贵典雅。

由伟壮先生 曾获荣誉

40UNDER40中国设计杰出青年(2017-2018)年度全国十强

2017红棉中国设计奖年度最美欧式空间设计奖

2017IDS国际设计先锋榜住宅空间优胜奖

2017IDS国际设计先锋榜最具空间表现奖

上海设计之都·创意双城季之2016创意生活设计(金蝴蝶)奖

2016永隆·星空间杯铜奖

2016年第十届大金内装设计大赛江苏地区美宅设计《公寓组》铜奖

2016年金堂奖年度优秀样板间/售楼处设计奖

2016 年Idea-Tops 国际空间设计大奖-艾特奖公寓设计和样板房类别的优秀入围奖

2016年入围中国(苏州)室内设计新势力榜

2016年喜舍杯·地产3.0住宅设计优秀研发设计奖

2016年第七届筑巢奖评审委员会评委

2016年IDS国际设计先锋榜 专业组·优胜奖

2015年“卡斯维诺杯”中国(苏州)室内设计总评榜年度室内设计杰出贡献奖

2015年“卡斯维诺杯”中国(苏州)室内设计总评榜年度陈设空间十佳作品奖

2015年筑巢奖-由伟壮作品《安之若泰》荣获样板房空间工程类提名奖

2015年中国设计星华东III区十强

2014年筑巢奖-《画沙》获得公众功能区域方案大奖

2014年筑巢奖-《致青春》获得餐饮空间方案类优秀奖

2014年中国住宅设计风尚人物奖全国20强荣誉称号

2013年金堂奖优秀购物空间设计奖

2013年筑巢奖优秀作品奖

2013年荣获第九届中国设计业青年百人榜

2012年荣获金堂奖年度优秀别墅设计作品

2012年荣获“亨特窗饰杯”首届全国软装TOP设计奖

2011年荣获金堂奖年度新锐设计师提名奖

2011年荣获金堂奖年度优秀住宅公寓设计作品

2011年作品再次入选"中央电视2台"<交换空间>家装气象站

2010年金堂奖年度十佳住宅公寓设计奖

2010年参加"中央电视2台"<交换空间>红蓝两队设计师pk节目

2010年作品<缘>入选"中央电视2台"<交换空间>家装气象站

2009年荣获全国最具影响力新锐设计师

2009年作品《卡萨布兰卡》入选"中央电视2台"<交换空间>家装气象

2009年作品获得中国室内空间环境艺术设计大赛一等奖

2008中国室内设计30人

2008中国新锐设计师

2007中国室内设计大赛赛区银奖

2006年苏州十佳优秀设计师

3

廖波

2017国际空间设计大奖Idea-Tops艾特奖深圳站入围奖

2017美国室内设计网“居然设计家杯”家居设计大奖赛住宅空间最佳人气奖

2017祝融奖(第九届中国照明应用设计大赛广州赛区)入围奖

2016祝融奖(第八届中国照明应用设计大赛广州赛区)优胜奖

2015广东省“岭南杯”室内设计职业技能大赛职业组三等奖

2015广东省“岭南杯”装饰工程应用技能大赛三等奖

廖波先生是香港十大顶尖设计大师、室内设计界的泰斗洪约瑟先生的关门弟子。十多年来,廖波一直追随洪约瑟先生,在室内设计空间规划、材料及软装搭配、灯光处理等领域得到洪约瑟先生的真传。在大师身边工作,也让廖波从一个初出茅庐的无知少年蜕变成一个资深的室内设计师。洪约瑟大师非常热爱自己的设计工作,他对工作认真、细致、对设计的不满足等设计精神一直感染着他,他也是一名一直在追随、一直在努力、一直在成长的青年设计师。

洪约瑟先生非常喜欢并器重这个关门弟子,并让他成为深圳洪约瑟空间环境灯光设计有限公司高级合伙人,担任设计总监,全面主持深圳公司设计工作及公司日常经营管理。其设计作品涉及到住宅空间、别墅豪宅、样板房、售楼处、办公空间、酒店设计、餐饮空间、展示空间、教育空间、会所设计、SPA及医疗美容等空间设计。

廖先生的设计作品尤为擅长光的处理。法国著名建筑师、设计师、摄影师Joseph Dirand曾经说过:光是让建筑存活的介质。在追逐设计之光的同时,廖先生也要为深圳的设计之光发声,助力深圳设计之光在国际设计舞台得以深入延展!

【廖波先生设计案例赏析】

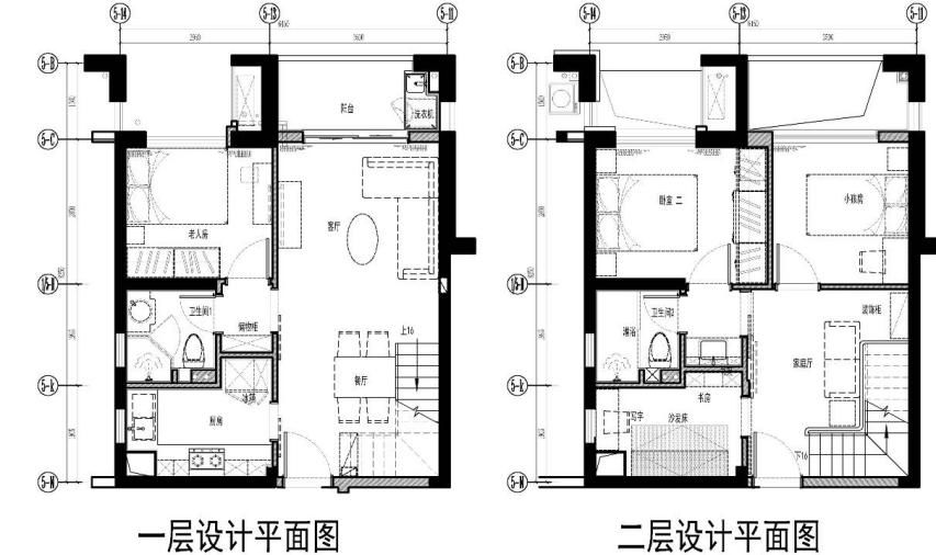
项目名称 厦门莱昂公馆G户型精装修样板房

项目地址 厦门市翔安新区

设计面积 100平方米

设计日期 2016年8月~2017年3月

完工日期 2017年10月9日

设计指导 洪约瑟

设计师 廖波

参与设计 杨国辉、黎瑞天、王磊

设计公司 深圳洪约瑟空间环境灯光设计有限公司

装修材料 多层实木地板、壁纸、大理石、乳胶漆、不锈钢、木饰面、布艺软包

洁具 科勒

灯具 雷士

橱柜 特房波特曼家具厂

【设计理念】

本案业主为年轻夫妇,斟酌到将来人口变化的可能性,需要预留出二孩和老人的卧室空间,故在卧室规划上,采用了分楼层3+1模式:一楼设计了一个卧室并带有洗手间,方便老人使用;二楼设计两个卧室加一个书房,书房可灵活变化为儿童房,分楼层设计卧室可避免老人和年轻人因生活作息时间不同而造成的干扰。

玄关空间受到设计师的格外重视,因为这里是家的第一印象、主人待客的第一门户,更是由外而内的心理过渡,能直接带来归属感的风水宝地。设计师在入户处设计了鞋柜,功能上能方便主人换鞋、挂衣、放钥匙雨伞等,空间上则围和出一个温馨的通道。楼梯下方的空间则华丽变身为海量储存空间,成为收纳系统重要的组成部分。楼梯造型和储物柜门通过暗门的方式融为一体。客厅主色调为暖白色,木饰面墙面、墙布及素色布艺窗帘遥相呼应,营造出简洁温馨的空间效果。天花采用倒圆角造型设计,配合独特的金色喇叭灯饰,顿时画龙点睛般点亮了整个空间环境。地面采用天然木纹地板,配合几何花纹的暖色地毯,和谐而统一。家具主要以浅色调为主,安静而美好。明黄色抽象派墙面装饰画让整个空间氛围跳跃起来,使客厅空间温馨不乏活跃,安静却又灵动。

面向餐厅的厨房门采用外推拉门,可将推拉门隐藏到入户门后,打开时高效地节省了平开门可能占用的空间,关闭时又不影响厨房的正常使用。厨房尽量采用沿墙全周布局,尽可能延伸组合柜台的工作面,同时把最需要自然采光的洗碗池放置在窗边,使整个空间高效便捷。同时通过预留了双开门冰箱的位置,洗碗池和洗碗机一体设计等,让科技带来的高品质生活成为可能。整体橱柜采用原木色底柜配合白瓷色上柜,使厨房空间温馨且干净整洁。

一层洗手间设计采用了1+1模式,即白天+黑夜模式。白天为结合客厅、餐厅等公共空间为公共洗手间,夜晚关上洗手间和客厅之间的推拉门,则成为老人房套房的一部分,方便老人夜间使用,即使早起也不会影响楼上年轻人的生活。洗手间入口走廊处见缝插针的设计了一组储藏柜,吊柜下装有一组柔和的灯带,避免刺眼和眩光,方便夜间使用。同时洗手台上也设计了一组镜柜作为收纳空间。充足的收纳空间体现出设计对使用者无微不至的关怀。整个盥洗空间采用干湿分离,尽显人性化设计,同时采用偏高级棕的暖色系,体现出家的温暖贴心和洁净舒适。

通往二层的楼梯是客厅的一个亮点,除了楼梯下隐藏的收纳空间,楼梯本身也颇具设计感。细圆管拉丝钢栏杆配以米黄色木扶手,让这个整个楼梯空间颇具通透性和灵动感。拾梯而上映入眼帘的是一个小小的家庭厅,形成一个缓冲休闲区,软硬结合的座椅照顾了每一个家庭成员的需求,简洁的白色陈列架可放置最有意义且私密性强的小物件、小型绿植等。充满情趣的地毯和壁画在色彩和图形上相互映衬,使小空间变得统一完整。洗手间同样使用推拉门,同时其他的门采用和墙面一致的色系,保持空间的最大完整性,原来的交通空间变得值得停留而成为有趣的公共空间。

沙发床使原本狭长的书房空间变得灵活多变,白天可以休息,晚上则可做卧室使用。书柜结合墙面铺满一侧,满足主人的藏书需求。白色系的书架配以明亮的小射灯,写字台靠近外窗,这些都使整个书房空间的亮度得到满足。

儿童房是最为不肯定的功能性房间,高低床的使用让这种不肯定性彻底被规避。倒圆角天花和柔和的局部灯带,配以风扇天花灯,让整个空间充满趣味感,柔美而童真。圆形的地毯,童趣的壁画,素色的窗帘,使儿童房活泼热闹的同时不失干净整洁。

斟酌到早晚使用高峰期家庭成员的不同需求,洗手台被外移到走道里。通过精心设计的盥洗空间使洗漱、沐浴等各种活动同时进行时都能得到完美的满足。

主人房最大的亮点是衣柜门即是电视墙,使衣柜完整如一的同时留出大床的空间。主人房同样采用软包床头,暖色调墙面,圆形倒角天花布局,使整个房间布局统一调和。

4

叶建荣

宁波装饰杂志 执行主编

宁波装饰网 总编辑

中国建筑与室内室内设计师网宁波站总编辑

宁波市建筑装饰行业协会设计分会 副秘书长

IEED国际生态环境设计联盟大中华区 宁波执委会主席

IEED环境设计联盟 大中华区副主任

宁波红色源文化传媒有限公司 企划总监

国家注册会展策划师

叶建荣先生,《宁波装饰》杂志执行总编,资深媒体人。提起叶先生的大名,相信宁波设计圈无人不知无人不晓,对叶先生也会毫不吝惜溢美之词。叶先生经营杂志15年间,共出版刊物92期,深度采访文化创意行业的精英,策划具有国际化视野和富有创意的设计行业主题活动,创建“宁波创意设计中心”,代领宁波设计力量由弱到强,积极推动宁波设计力量的兴盛发展。他要为宁波的设计力量发声,要让宁波的光鲜设计众所周知!

以刊网、协会为媒,深挖文创行业资源

《宁波装饰》杂志创刊于2004年,是宁波地区家居建筑装饰界最具专业性、影响力、权威性的刊物;详尽展现宁波最新的优秀室内设计作品;深度报道中国新锐室内和建筑设计师;全面展现值得关注的家居建材品牌;以专业素养解读装饰设计、传播设计价值。与杂志同时创建的宁波装饰网,是宁波室内设计行业第一门户网站,也是宁波最大的室内设计作品实景案例搜索平台,汇集2000余名精英设计师近十万套实景案例。宁波创意设计展示中心,是集聚文创、设计、工艺美术作品的展示平台。

经营杂志15年间,共出版刊物92期,深度采访300余位文化创意行业的精英。以刊物、网站、协会秘书处为媒介,通过线上传播线下活动,搭建一个面向宁波大市、联通全国的创意设计行业综合服务平台。

30余个专业合作联盟,100多场大型主题活动

自2008年起,先后与台湾、香港、上海、广州、南京、杭州、重庆、成都等30余个地区及城市的专业机构建立合作联盟。策划宁波创意设计力量抱团走出宁波,先后在广州、深圳、上海、杭州等地举办城际交流,组织参加各类大奖赛,也正因为有了这样的抱团出走和亮相,宁波的设计力量从弱走强,逐渐为行业所知,这些年先后捧回亚太双年大奖、CIID大奖、金羊奖、金堂奖等多个国内外知名奖项。

先后为宁波国际服装节、中国住博会、宁波精品家具展、中国海洽会、2007环球小姐中国区总决赛、太平鸟、罗蒙、雅戈尔、杉杉、狮丹努等多个组织和集团提供策划设计服务;主办执行各类大型设计主题活动超百场。

筹创意设计中心,搭跨界综合服务平台

目前红色源文化传媒已整合集设计协会、设计展会、设计传媒、设计师培养、设计师资格鉴定和艺术衍生品营销于一体的资源体系。并创建“宁波创意设计中心”,用文化创意集结艺术家、设计师、手艺人、消费者、企业及院校,常态化开展各类文化艺术、生活美学、家居设计及其相关的讲座和沙龙,创建宁波文创设计产业城际交流接待的会客厅。常态化展示国内外文创设计、家居设计、工艺美术作品,特别是宁波本土艺术家、设计师、传统匠人、高校文创实践成果的品牌及作品。实现创意设计与时尚生活、传统工艺、制造业、高校产学研的嫁接与转化。搭建一个集展示、交流、体验、秘书处、杂志社、联络处和办公于一体的跨界综合服务平台。

第二届红鼎奖作品征集已经截止!

第二届红鼎奖自2017年8月15日启动以来,受到设计行业内众多名人睿士的广泛关注,历经7个月,收到了全国各地区的作品投稿,现已截止报名。接下来将进入严格的评选阶段,请持续关注家饰后续报道。

附录

红鼎奖组织机构:

主办单位

中国建筑装饰协会

嘉兴市秀洲区王店镇人民政府

承办单位

中国建筑装饰协会住宅部品产业分会

中国建筑装饰协会设计委员会

嘉兴市秀洲区王店集成装饰(顶墙)协会

颐家家居网

《家饰》杂志

联和冠名品牌

鼎美、品格、美尔凯特、来斯奥、奥华、今顶

学术支持

中央美术学院、清华大学、天津美术学院、同济大学、广州美术学院、苏州大学、上海理工大学、上海视觉艺术学院、上海工程技术大学

中国建筑装饰协会:

中国建筑装饰协是于1984 年9月经中华人民共和国民政部批准成立的协会。业务指导是中华人民共和国住房与城乡建设部,拥有直属会员企业3000余家。

20 年来,中国建筑装饰协会以促进行业生产力发展为目标,发挥了桥梁和纽带作用,在行业物质文明和精神文明建设方面,认真组织行业内活动。在行业标准、法规建设、组织行业调研、推动行业科技进步、参与行业管理、开展行业培训、组织国际交流等方面取得优异成绩,为规范行业举止、维护市场秩序、推动公平竞争、加强国际交流合作,做出了积极的贡献。

联 系 人:

贺岩峰、郝梓辰、徐文静、袁涛、张顺

固定电话:010-64440014 010-64424795

移动电话:13651154623 15010038895

QQ:3260591946 490157678

微信:490157678

邮箱:[email protected]

大赛官网:

http://www.e-jjj.com/topic/hdj2017/index.html